Save
Ask
Tour
Hide
$306,940
40 Days On Site
16202 Domestic Dove WayHockley, TX 77447
For Sale|Single Family Residence|Active
4
Beds
3
Total Baths
2
Full Baths
1
Partial Bath
2,263
SqFt
$136
/SqFt
2026
Built
Subdivision:
The Grand Prairie
County:
Harris
Due to the health concerns created by Coronavirus we are offering personal 1-1 online video walkthough tours where possible.
Call Now: 832.631.9104
Is this the listing for you? We can help make it yours.
832.631.9104



Save
Ask
Tour
Hide
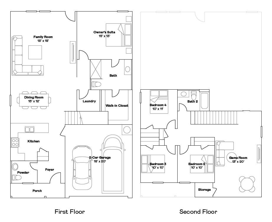
NEW! Lennar Core Watermill Collection "Sherman" Plan with Elevation "J4" in The Grand Prairie! This two-story home has a comfortable layout for those who need privacy. The front door leads into an open concept living area with a kitchen, family room and dining room. Tucked into the back corner is the owner’s suite, which features a private bathroom and walk-in closet. Upstairs is a versatile game round surrounded by three bedrooms that share a bathroom in the hall.
Save
Ask
Tour
Hide
Listing Snapshot
Price
$306,940
Days On Site
40 Days
Bedrooms
4
Inside Area (SqFt)
2,263 sqft
Total Baths
3
Full Baths
2
Partial Baths
1
Lot Size
N/A
Year Built
2026
MLS® Number
85788574
Status
Active
Property Tax
N/A
HOA/Condo/Coop Fees
$100 monthly
Sq Ft Source
N/A
Friends & Family
Recent Activity
| 13 hours ago | Listing updated with changes from the MLS® | |
| 13 hours ago | Price changed to $306,940 | |
| a month ago | Listing first seen on site |
General Features
Disclosures
Mud
Foundation
Slab
Property Condition
Under Construction
Property Sub Type
Single Family Residence
SqFt Total
2263
Style
Traditional
Water Source
Public
Interior Features
Appliances
DisposalMicrowaveDishwasher
Cooling
Electric
Heating
Natural Gas
Interior
Master Downstairs
Save
Ask
Tour
Hide
Exterior Features
Construction Details
BrickCement Siding
Lot Features
Subdivided
Roof
Composition
Community Features
Association Dues
1200
HOA Fee Frequency
Annually
MLS Area
25
School District
55 - Waller
Schools
School District
55 - Waller
Elementary School
I T Holleman Elementary
Middle School
Waller Junior High School
High School
Waller High School
Listing courtesy of Lennar Homes Village Builders, LLC [email protected]
IDX information is provided exclusively for consumers’ personal, non-commercial use. It may not be used for any purpose other than to identify prospective properties consumers may be interested in purchasing. This data is deemed reliable but is not guaranteed accurate by the MLS.
Data provided by HAR.com © 2026. All information provided should be independently verified.
IDX information is provided exclusively for consumers’ personal, non-commercial use. It may not be used for any purpose other than to identify prospective properties consumers may be interested in purchasing. This data is deemed reliable but is not guaranteed accurate by the MLS.
Data provided by HAR.com © 2026. All information provided should be independently verified.
Neighborhood & Commute
Source: Walkscore
Disclosure: Community information and market data powered by Constellation Data Labs. Information is deemed reliable but not guaranteed.
Save
Ask
Tour
Hide


Did you know? You can invite friends and family to your search. They can join your search, rate and discuss listings with you.